Каталог продукции

ДИК 2.39-ДПК Детский игровой комплекс Н=700 мм

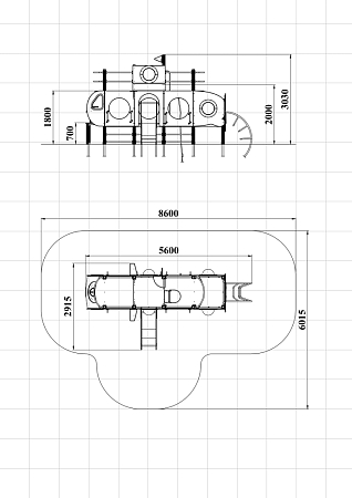
Технические параметры


Длина:
5600 мм
Ширина:
2915 мм
Высота:
3030 мм
Возраст:
от 3 до 6 лет
Высота падения:
1800 мм
Площадь зоны безопасности:
51 м2
ДИК 2.39-ДПК Детский игровой комплекс Н=700 мм (Палитра 5 (-11,32))

Детский игровой комплекс скомпонован в форме подводной лодки, состоит из четырех спаренных башен и одной радиусной полубашни, являющейся передом подводной лодки. Центральная башня - двухъярусная, имитирует рубку подводной лодки. Ограждениями первого яруса являются фанерные листы с круглыми вырезами-лазами. На задней части первого яруса два ограждения с пластиковыми иллюминаторами. На первом ярусе центральной башни расположена горка, напротив неё - ограждение с лазом и перекладина с канатом. Входами на первый ярус со стороны улицы являются шведские стенки, расположенные под боковыми ограждениями с лазами. К задней части подводной лодки крепится лиана наклонная. Переход с первого яруса на второй обеспечен лестницей металлической, крепящейся снизу к полу первого яруса, проходящей сквозь люк-вырез пола второго яруса, сверху крепится к столбам башни. Второй ярус огражден фанерными ограждениями с пластиковыми иллюминаторами и дуговыми металлическими перекладинами.

ДИК 2.39-ДПК Детский игровой комплекс Н=700 мм (Палитра 5 (-11,32))
ДИК 2.39-ДПК Детский игровой комплекс Н=700 мм (Палитра 9 (с35/8,22,35))
ДИК 2.39-ДПК Детский игровой комплекс Н=700 мм (Палитра 8 (с26/11,13))
ДИК 2.39-ДПК Детский игровой комплекс Н=700 мм (Палитра 6 (с26/8,21))
ДИК 2.39-ДПК Детский игровой комплекс Н=700 мм (Палитра 7 (с26/8,32))
  • Оперативная отгрузка товара

  • Помощь в доставке транспортной компанией

  • Описание товара ДИК 2.39-ДПК Детский игровой комплекс Н=700 мм

  • Техническая информация

  • Материалы и цвета

  • Загрузки

           
Ответим на ваши вопросы
по телефону 8 (800) 555-22-82
по почте office@euro-maf.com