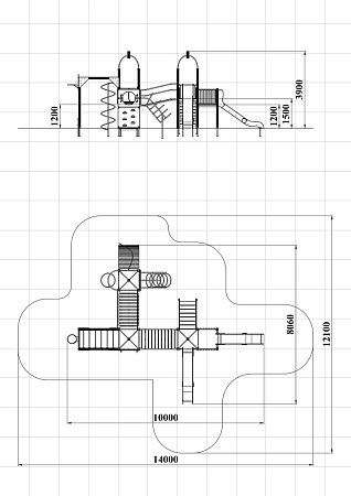
Технические параметры
Длина:
10000 мм
Ширина:
8060 мм
Высота:
3900 мм
Возраст:
от 7 до 13 лет
Высота падения:
2100 мм
Площадь зоны безопасности:
168 м2
ДИК 3.167-ДПК Детский игровой комплекс Н=1200,1500 мм (Палитра 5 (-11,32))
Детский игровой комплекс состоит из трёх башен с металлическими крышами. На первой башне с полубашней установлены лестница, две горки, ограждения металлические и соединяется со второй башней разновысоким мостом с металлическими перилами. На второй башне установлены ограждение с круглым вырезом, альпинистская стенка, ручки вспомогательные, шведская стенка, внешний гимнастический комплекс с баскетбольным щитом и кольцом. Вторая башня соединяется с третьей радиусным мостом с фанерными перилами. На третьей башне установлена спираль наклонная, шест-спираль, ручки вспомогательные и трап барабан с перекладиной и канатом.






