Технические параметры
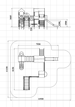
Детский игровой комплекс состоит из трёх башен с крышами, имеет художественное оформление в стиле граффити. На первой башне установлена альпинистская стенка с перекладиной и канатом, шведская стенка, шест, ограждение и ручки вспомогательные. На второй башне установлены горка, ограждения, лестница, шведская стенка. На третьей башне установлены спираль наклонная, ограждение, шест спираль, ручки вспомогательные и перекладина. Первая и вторая башни соединены сеткой полипропиленовой, вторая и третья соединены подвесным качающимся мостом. К первой башне присоединен с помощью бум бревна гимнастический комплекс с рукоходом, сеткой вертикальной металлической, двумя шведскими стенками и декоративными арками.






