Технические параметры
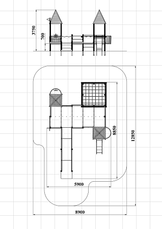
Детский игровой комплекс предназначен для детей с ограниченными физическими возможностями, он состоит из пяти сдвоенных открытых башен и двух башен с пирамидальными крышами. На одной из башен установлена горка, балкон, металлическое ограждение из перекладин. На другой башне установлено фанерное ограждение, балкон с фанерным рулём и комплект детских счет с разноцветными пластиковыми бубликами. Обе башни расположены диагонально друг напротив друга. Между ними расположены пять двойных площадок с ограждениями по периметру из металлических перекладин и фанерных ограждений. Вход на площадку осуществлен в виде двойного наклонного трапа с металлическими перилами. Сбоку от площадки расположен спортивный комплекс, состоящий из столбов, шведских стенок и горизонтальной полипропиленовой сетки. Ограждением комплекса также служит брус расположенный по периметру комплекса над ламинированными полами. В углу комплекса расположен столб с декоративными фанерными флажками.






