Технические параметры
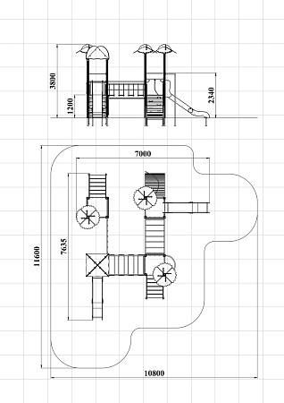
Детский игровой комплекс состоит из четырех башен с крышами. На первой башне установлена лестница, ограждение фанерное, ручки вспомогательные, перекладины и альпинистская стенка. На второй башне установлены горка, ограждение фанерное и перекладины. На третьей башне установлены лестница, шест, альпинистская стенка, перекладины и ручки вспомогательные. На четвертой башне установлена горка, альпинистская стенка, трап барабан с перекладиной и канатом, перекладины и ручки вспомогательные. Первая и вторая башни соединены металлической вертикальной сеткой, вторая и третья башни соединены подвесным качающимся мостом, третья и четвертая башни соединены рукоходом. Все резьбовые соединения должны быть закрыты пластиковыми заглушками.Детский игровой комплекс состоит из четырех башен с крышами. На первой башне установлена лестница, ограждение фанерное, ручки вспомогательные, перекладины и альпинистская стенка. На второй башне установлены горка, ограждение фанерное и перекладины. На третьей башне установлены лестница, шест, альпинистская стенка, перекладины и ручки вспомогательные. На четвертой башне установлена горка, альпинистская стенка, трап барабан с перекладиной и канатом, перекладины и ручки вспомогательные. Первая и вторая башни соединены металлической вертикальной сеткой, вторая и третья башни соединены подвесным качающимся мостом, третья и четвертая башни соединены рукоходом.






