Технические параметры
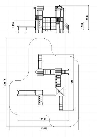
Детский игровой комплекс состоит из четырёх башен. На первой башне установлены крыша наклонная, ограждение из бруса, шест, перекладина и горка. На второй башне установлены крыша наклонная, ограждение из бруса, перекладина и лестница. На третьей башне установлены крыша четырехскатная, горка, перекладина и четыре ограждения из бруса. На четвёртой башне установлены три ограждения из бруса, пять перекладин, декоративные флажки и трап из бруса с альпинистскими камнями Первая и вторая башни соединены полипропиленовым переходом, вторая и третья башни соединены мостом подвесным из деревянного бруса и полипропиленового каната, третья и четвёртая башни соединены сеткой полипропиленовой.






