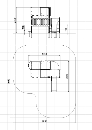
Технические параметры
Длина:
3050 мм
Ширина:
3050 мм
Высота:
2500 мм
Возраст:
от 3 до 6 лет
Высота падения:
700 мм
Площадь зоны безопасности:
40 м2
ДИК 9.08-ДЕРЕВО Детский игровой комплекс Н=700 мм (Палитра 1 (-15))
Детский игровой комплекс состоит из двух башен. На первой башне установлена перекладина, горка, фанерное ограждение и ручки вспомогательные. На второй сдвоенной башне, установлены фанерные ограждения, перекладина и крыша.






