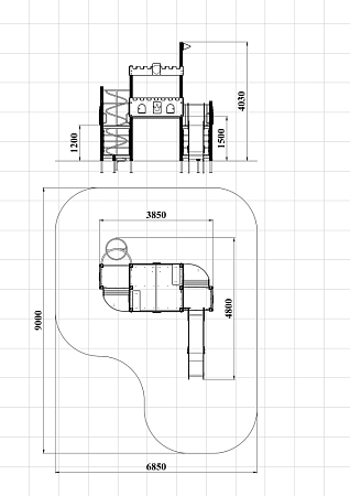
Технические параметры
Длина:
4800 мм
Ширина:
3850 мм
Высота:
4030 мм
Возраст:
от 7 до 13 лет
Высота падения:
1500 мм
Площадь зоны безопасности:
61 м2
ДИК 9.112-ДЕРЕВО Детский игровой комплекс Н=1200 мм (Палитра 1 (-15))
Детский игровой комплекс состоит из трех разновысоких башен. На первой башне установлена лестница, горка, фанерное ограждение и ручки вспомогательные. На второй сдвоенной башне, установлены ограждения фанерные и крыша. На третьей башне установлены ограждение, переклади-ны, шест спираль, лестница и ручки вспомогательные.






