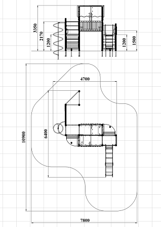
Технические параметры
Длина:
6400 мм
Ширина:
4700 мм
Высота:
3350 мм
Возраст:
от 7 до 13 лет
Высота падения:
2170 мм
Площадь зоны безопасности:
85 м2
ДИК 9.12-ДЕРЕВО Детский игровой комплекс Н=1200 мм (Палитра 1 (-15))
Детский игровой комплекс состоит из трех разновысоких башен. На первой башне установлена лестница, горка, фанерное ограждение и ручки вспомогательные. На второй сдвоенной башне, установлены фанерные ограждения и крыша. На третьей башне установлены ограждение, шест спираль, лестница и ручки вспо-могательные. К третьей башне присоединен гимнастический комплекс, состоящий из сетки полипропиленовой и двух шведских стенок.






