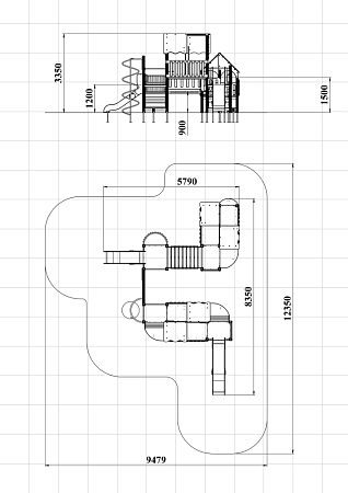
Технические параметры
Длина:
8350 мм
Ширина:
5790 мм
Высота:
3350 мм
Возраст:
от 3 до 13 лет
Высота падения:
1500 мм
Площадь зоны безопасности:
108 м2
ДИК 9.163-ДЕРЕВО Детский игровой комплекс Н=900 мм,1200 мм (Палитра 1 (-15))
Детский игровой комплекс состоит из шести разновысоких башен. На первой башне установлена лестница, горка, фанерное ограждение и ручки вспомогательные. На второй сдвоенной башне, установлены фанерные ограждения и крыша. На третьей башне установлены фанерное ограждение, шест спираль, лестница и ручки вспомогательные. На четвертой башне установлены горка и балкон. На пятой башне установлено фанерное ограждение, лестница, вспомогательные ручки. На шестой сдвоенной установлены фанерные ограждения и крыша. Третья и четвертая башни соединены сеткой полипропиленовой, четвертая и пятая прямым мостом с фанерными перилами.






