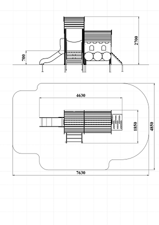
Технические параметры
Длина:
4630 мм
Ширина:
1850 мм
Высота:
2700 мм
Возраст:
от 3 до 6 лет
Высота падения:
700 мм
Площадь зоны безопасности:
36 м2
МФ 4.062-ДПК Локомотив без вагонов (Палитра 5 (-11,32))
Локомотив состоит из кабины, горки, лестницы и трапа. Кабина имеет вход в виде трапа наклонного и лестницы, две крыши из деревянного бруса с декоративными фанерными арками. На локомотиве располагаются декоративные колеса.






