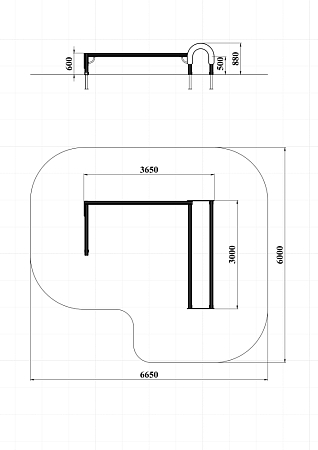
Технические параметры
Длина:
3650 мм
Ширина:
3000 мм
Высота:
880 мм
Возраст:
от 3 до 13 лет
Высота падения:
600 мм
Площадь зоны безопасности:
40 м2
СО 5.123 Бум-бревно двойное (Палитра 5 (-11,32))
Последовательно и параллельно установленные деревянные брусья опирающиеся на металлические стойки. К параллельным брусьям крепятся декоративные фанерные арки.
Файлы для загрузки
- СО 5.123-8,22,35 с зоной безопасности.rar
- СО 5.123-11,32 с зоной безопасности.rar
- СО 5.123-15 с зоной безопасности.rar
- СО 5.123-16 с зоной безопасности.rar
- СО 5,123-26,8,32с зоной безопасности.rar
- СО 5.123-с22,19,20 с зоной безопасности.rar
- СО 5.123-с22,20,34 с зоной безопасности.rar
- СО 5.123-с26,8,21 с зоной безопасности.rar
- СО 5.123-с26,11,13 с зоной безопасности.rar



