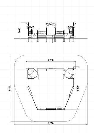
Технические параметры
Длина:
6250 мм
Ширина:
5400 мм
Высота:
2030 мм
Возраст:
от 1 до 13 лет
Высота падения:
400 мм
Площадь зоны безопасности:
77 м2
МФ 3.28 Песочный дворик (Палитра 12 (Художка))
Песочный дворик – модульная конструкция из игровых и развивающих элементов с морской тематикой. Конструкция оборудована двумя песочницами, одной аркой и ограждением из бруса и фанеры по периметру. Песочницы оборудованы навесами, декоративными фанерными флажками, ограждениями, два из которых имеют круглый вырез в виде иллюминатора и фанерные накладки. По периметру дворика расположены детские счеты с пластиковыми бубликами, сидения, арка в виде дельфинов с декоративным соединяющим элементом из фанеры в виде мяча, спойлеры с накладками в виде морских коньков с художественным оформлением.






