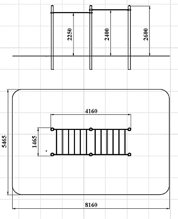
Технические параметры
Длина:
4160 мм
Ширина:
1465 мм
Высота:
2600 мм
Возраст:
от 14 до 18 лет
Высота падения:
2400 мм
Площадь зоны безопасности:
45 м2
СО 7.02 Рукоход классический двухуровневый (Палитра 4 (с22/22,34))
Воркаут состоит из шести несущих столбов и двух рукоходов с зажимными хомутами.



