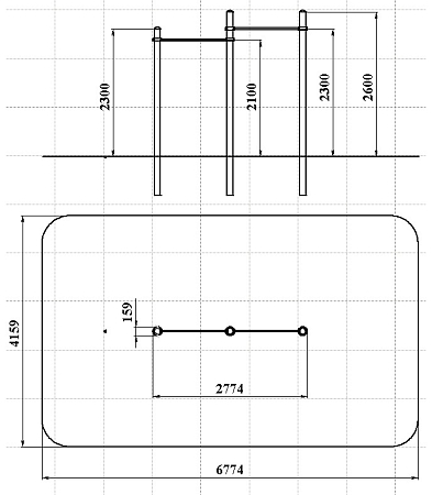
Технические параметры
Длина:
2774 мм
Ширина:
159 мм
Высота:
2600 мм
Возраст:
от 14 до 18 лет
Высота падения:
2300 мм
Площадь зоны безопасности:
25 м2
СО 7.14 Двойной турник (Палитра 4 (с22/22,34))
Воркаут состоит из трех несущих столбов и двух перекладин с зажимными хомутами.



