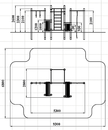
Технические параметры
Длина:
5300 мм
Ширина:
2800 мм
Высота:
2600 мм
Возраст:
от 14 до 18 лет
Высота падения:
2100 мм
Площадь зоны безопасности:
55 м2
СО 7.22 THE BEST (Палитра 4 (с22/22,34))
Воркаут состоит из двенадцати несущих столбов, девяти перекладин, перекладины с канатом, перекладины с гимнастическими кольцами, шведской стенки и двух наклонных скамей из бруса с зажимными хомутами.



