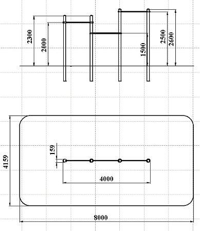
Технические параметры
Длина:
4000 мм
Ширина:
159 мм
Высота:
2600 мм
Возраст:
от 14 до 18 лет
Высота падения:
2500 мм
Площадь зоны безопасности:
31 м2
СО 7.34 Турник воркаут 1500,2000,2500 (Палитра 4 (с22/22,34))
Воркаут состоит из четырех несущих столбов и трёх перекладин с зажимными хомутами.



